NUEVO POLIDEPORTIVO
Así será la piscina municipal de Retiro, la tercera que se construye en Madrid en 30 años
El anteproyecto contempla la construcción de una piscina de verano junto a otra de "chapoteo" para los niños sobre el techo del futuro pabellón deportivo

Vista aérea de la parcela donde se ubicará el nuevo polideportivo de Retiro. / Anteproyecto del Área de Obras y Equipamientos

La capital sumará próximamente la tercera nueva piscina municipal en tres largas décadas. Será en Retiro, históricamente huérfano de una piscina pública en condiciones. Con cerca de 130.000 habitantes censados, el distrito lleva años teniendo que conformarse con la pequeña piscina exterior del Centro de Natación M86, apenas un "mojaculos", en palabras de los propios vecinos, a todas luces insuficiente para mitigar los meses de canícula.
Dependiente de la Comunidad de Madrid, el M86 tan solo cuenta con dos piletas exteriores para el verano con aforo para 200 personas. El resto de piscinas están restringidas al público general desde 2010, cuando tras un proceso de reforma parte de la gestión del centro pasó a manos de las federaciones madrileña y española de natación. Desde entonces, las instalaciones se dedican a clases de natación y al entrenamiento de las distintas escuelas de deportes acuáticos.
En este contexto, la aprobación el pasado verano de un Plan Especial para construir un polideportivo en el distrito que incluye una piscina de verano fue recibida, valga la gracia, como un baño de esperanza. Durante el debate en el Pleno junio, el Ayuntamiento adelantó que el Área de Obras y Equipamientos que dirige Paloma García Romero ya estaba trabajando en el anteproyecto del nuevo equipamiento municipal en Retiro. Esta semana, tras una visita del alcalde, José Luis Martínez-Almeida, a otro polideportivo, el Consistorio ha adelantado nueva información sobre cómo será el futuro centro, situado en el 138 de la calle Doctor Esquerdo.
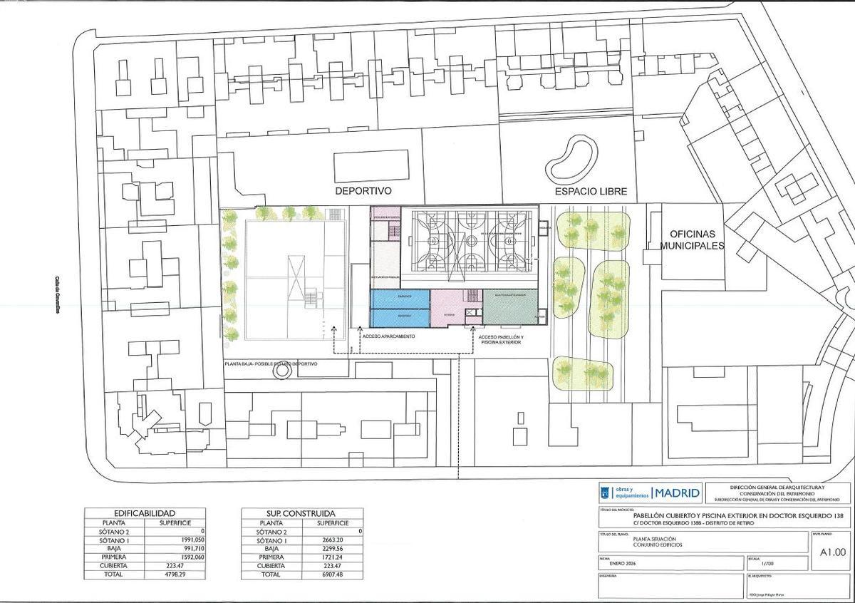
De acuerdo con la misma, la parcela cuenta con 7.420 m² y el proyecto se concentra en su zona central, reservando además un espacio libre ajardinado como transición entre el nuevo equipamiento y el edificio de oficinas del Área de Políticas de Vivienda ya existente en los terrenos. En cifras, se prevén 1.900 m² de zona ajardinada y 3.340 m² para la piscina y el pabellón, mientras que 2.180 m² quedan fuera de actuación porque el anteproyecto no incluye la parte sur de la parcela, "sobre la que decidirá el próximo equipo municipal que surja de las elecciones municipales de 2027".

Plano general del futuro centro deportivo municipal de Doctor Esquerdo 138. / Anteproyecto del Área de Obras y Equipamientos
Por lo que respecta a la organización, el edificio contará con una planta bajo rasante, dos sobre rasante y una cubierta que alberga la zona principal de piscina. En el sótano se ubica el pabellón deportivo de 40 x 20 m, con canchas polivalentes, vestuarios, almacenes, aparcamiento e instalaciones generales. La planta baja concentra el acceso, la zona administrativa y una sala polivalente con vistas al pabellón, y en la planta primera se disponen vestuarios y taquillas para la piscina exterior, además de salas de actividades dirigidas y fitness y una terraza.
Finalmente, la cubierta del inmueble se destinará a la tan ansiada piscina exterior de verano, que tendrá una superficie de 363,6 m2, según los planos a los que ha tenido acceso este periódico, alrededor de 15 x 25 metros. Estará acompañada por otra piscina de "chapoteo" para los más pequeños, de 36,2 m2 y de la "playa" de piscina, así como de los aseos y el resto de servicios asociados. El conjunto planteado, señala el Gobierno municipal, no agota la edificabilidad de la parcela, al quedar esta por debajo de la altura urbanística permitida.

Plano transversal de la piscina de verano, que se situará en el techo de la instalaciones. / Anteproyecto del Área de Obras y Equipamientos
Todavía no se trata del proyecto definitivo, pero las líneas finales irán en esta dirección, según confirman fuentes de Obras y Equipamientos consultadas. Por el momento, el Ayuntamiento ya ha mostrado el anteproyecto al resto de grupos municipales, que "se han mostrado de acuerdo con el mismo", así como a los vecinos, tal y como se comprometió con ellos durante los trabajos de desamiantado de la parcela.
Preguntado al respecto, Félix Sánchez Villarejo, el presidente de la Asociación Vecinal Retiro Norte, asegura que, por un lado, les "alegra" que por fin se vaya a ejecutar esta instalación, que esperan que "sea de gestión directa". Por otro, lamenta que la piscina de verano proyectada sobre el techo del centro "va a ser muy pequeña" para las necesidades reales del distrito, por lo que reclama al Ayuntamiento que "se planteen usar el resto del solar para poner otra piscina en condiciones y un espacio verde".
- La Comunidad de Madrid dotará de servicios digitales y equipos informáticos a 142 municipios de menos de 20.000 habitantes
- Descubre el 'balcón de la Sierra Norte de Madrid', donde la historia medieval se fusiona con la naturaleza y las mejores vistas
- Metro de Madrid decora la estación de Móstoles Central con imágenes de la colección del Museo CA2M
- La Comunidad de Madrid impulsa el modelo EGB: duplica el número de colegios que imparten 1º y 2º de ESO el curso que viene
- Así es el mejor colegio de España: está en Madrid y combina excelencia académica e innovación
- Madrid destaca en educación: tres colegios de la capital, entre los cinco mejores del país en 2026
- Cristina Sánchez: 'Mi gran aliado siempre ha sido el toro: no tenía prejuicios, no decía 'uy, es una mujer'
- El 8M en Madrid, en directo | Última hora de las dos marchas diferentes que recorrerán Madrid este domingo